The 5 best must-know tips on how to arrange the furniture in a long room. Interior design in a long room can be challenging, but do not worry I am here to take your headache away.
Long rooms are more challenging than a square or a classic rectangular room. With those we have general idea of how to approach the arrangement of the furniture. There are certain ways you can do this brilliantly though so no panic. I am here to help!
- Sections

First and foremost you need to create sections in a longer room . What you can do is divide it for one to three parts. These section will give home to different furniture groups. Usually the section have different purposes. As you can see on the illustration as an example the left side has a kind of drawing room style with a piano and a table for tea. While on the other side is a lounge area with a coffee table a sofa and and armchair. You can easily swap these with each other. The sections can be separated by carpets, dividers or with furniture pieces used as dividers. Each of them have a focal point. In this case it is in the middle but it can be also on the side like a television on the wall for example.
2. Balance

Imagine balance in the room like it is a scale. Generally is a great rule to follow in any case from bookshelf styling to coffee tables. If every single furniture is on the left side and the right side is empty you will wonder, why they have not used this space? As you can see on this picture as an example the L shaped sofa’s shorter end has two armchairs on the other side to balance it out. While the whole section becomes more balanced and creates a U shape in the middle of the room. Symmetry and balance will create a great holistic environment while you also utilise the spaces you can use.
3. Dividers

Dividers or separators can be used to differentiate the sections from each other. The most basic one as I mentioned before is a carpet or rug under the furniture. The rug can group the furniture together as shown on the picture, while for example the back of the sofa can create a separator line. You can also use screens, curtains and other bespoke dividers as well as bookshelves. You can also use artworks. For instance a long and tall art piece can create a separation effect too. If you do not have anything to physically separate the sections you can just focus on grouping the furniture together which will naturally create separated spaces.
4. Focal Points

Focal points are very important in every room. They can be created intentionally by placing an item in the highlight of the area, a yellow pillow in a grey scale room, a painting with picture lighting or a feature ceiling light. However there is a natural focal point too in every area, and that is where the attention of the people is drawn to who are using the room. For example in the office on the picture is the desk, if there is a lounge area with a television is more than likely that is going to be the focal point. The focal points are another way to separate areas as every area will have one special focal point.
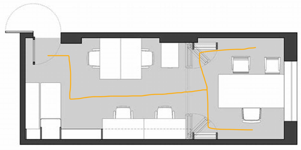
5. Passage ways

Passage ways as well can be used to separate parts of the room. If you use it wisely it can be a divider without any physical barrier at all. If you use one long line in the middle as a passage way it will make the room appear or feel longer while more vertical lines across the room will make it feel shorter. Always try to leave enough room between the furniture to be able to move around easily an comfortably. Also do not forget inclusion and make it wide enough to be accessible for everyone, as a general rule in interior design.

Hi, I am Gabriella. Thank you so much for spending your time with me and thanks for your attention. Hope you enjoyed this article and now you are ready to make your long room an amazing space to be in.
If you have any feedback, questions or any other inquiries at all please drop me a message at any time.
I will come back to you as soon as I can.


Leave a comment